505.000€
Partilhar
Referência
DS-150/25
Natureza
Venda
Tipo de Imóvel
Apartamento
Tipologia
T2
Estado
Excelente
Certificado energético
A
Ano
2024
Distrito
Madeira
Concelho
Funchal
Freguesia
São Martinho
Código Postal
9000
Área Útil
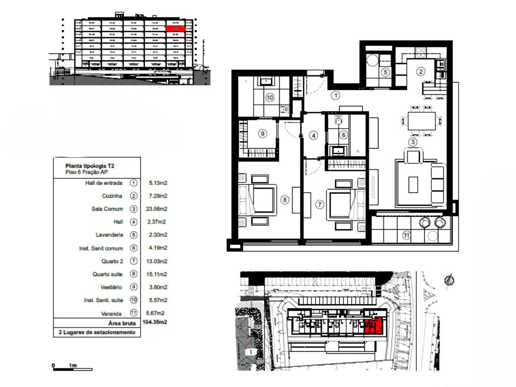
104.35 m2
Área Bruta
104.35 m2
Área de Terreno
5.67 m2
Apartamento T2 em condomínio fechado com piscina, solario, parque infantil e jardins, localizado em zona de serviços e transportes públicos a 5 minutos do centro da cidade. O apartamento localizado no 6º piso do edifício é composto por Hall de entrada, sala comum com varanda e cozinha em open space, lavandaria, casa de banho comum, quarto e suite com closet e casa de banho privativa. Deste apartamento fazem parte ainda 1 estacionamento e uma arrecadação em garagem fechada. Alguns dos equipamentos contemplados no apartamento são eletrodomésticos TEKA, sistema de aquecimento de águas por bomba de calor com eficiência energética A+, Ar condicionado, Pré-instalação para Veículos elétricos no estacionamento e Ponto de tomada elétrica na arrecadação. Nesta zona e muito próximo do edificio existem hospital, clinicas, bancos, supermercados, farmácias, escolas, jardins de infância, lojas de ferragens e materiais de construção, McDonalds entre outros. A próximidade em relação ás praias, grandes cnetros comerciais e acessos á via expresso que circunda a ilha. Não perca mais tempo, venha conhecer a sua próxima casa ou investimento! Contacte-nos já!
| Gerais | Pisos: | 2 |
|---|---|---|
| Gerais | Reservatório de agua: | Sim |
| Gerais | Nº de Casas de Banho: | 2 |
| Gerais | Nº de Terraços: | 1 |
| Gerais | Nº de Arrecadações: | 1 |
| Gerais | Lavandaria: | Sim |
| Gerais | Despensa: | Sim |
| Gerais | Armário de roupa / closet: | Sim |
| Gerais | Suite: | Sim |
| Gerais | Adaptado a mobilidade reduzida: | Sim |
| Gerais | Recomendado para crianças: | Sim |
| Climatização | Ar condicionado: | Sim |
| Climatização | Bomba de calor: | Sim |
| Caixilharia | Aluminio: | Sim |
| Caixilharia | Termolacada: | Sim |
| Caixilharia | Vidro Duplo: | Sim |
| Vistas | Cidade: | Sim |
| Vistas | Jardins: | Sim |
| Vistas | Serra: | Sim |
| Exposição Solar | Nascente: | Sim |
| Exposição Solar | Sul: | Sim |
| Quarto de Banho | Comum: | Sim |
| Quarto de Banho | Próprio: | Sim |
| Luz Natural | Iluminado: | Sim |
| Ar Condicionado | Completo: | Sim |
| Fuga de Fumos | Chaminé mecânica: | Sim |
| Infraestruturas | Esgotos: | Sim |
| Garagem | Individual: | Sim |
| Garagem | Fechada Interior: | Sim |
| Cozinha | Móveis lacado: | Sim |
| Cozinha | Placa: | Sim |
| Cozinha | Forno: | Sim |
| Cozinha | Exaustor: | Sim |
| Cozinha | Micro-ondas: | Sim |
| Cozinha | Frigorífico: | Sim |
| Cozinha | Máquina de lavar loiça: | Sim |
| Cozinha | Máquina de lavar roupa: | Sim |
| Pavimento | Madeira: | Sim |
| Pavimento | Soalho: | Sim |
| Pavimento | Piso vinílico: | Sim |
| Pavimento | Cerâmica: | Sim |
| Pavimento | Flutuante: | Sim |
| Gerais | Nº de Frentes : | 2 |
|---|---|---|
| Gerais | Nº de Pisos: | 2 |
| Gerais | Nº de Varandas: | 1 |
| Gerais | Nº de Lugares de Estacionamento: | 1 |
| Gerais | Nº de Garagens: | 1 |
| Gerais | Nº de Piscinas: | 1 |
| Elevador | Nº de Elevadores: | 2 |
| Tipo de Empreendimento | Condomínio fechado: | Sim |
| Tipo de Empreendimento | Habitação: | Sim |
| Tipo de Empreendimento | Lojas: | Sim |
| Isolamento | Acústico: | Sim |
| Isolamento | Térmico: | Sim |
| Revestimento Exterior | Mármore: | Sim |
| Revestimento Exterior | Monomassa: | Sim |
| Revestimento Exterior | Pintado: | Sim |
| Revestimento Exterior | Capoto: | Sim |
| Pavimento Hall de Entrada | Mármore: | Sim |
| Pavimento Hall de Entrada | Pedra natural: | Sim |
| Paredes Hall de Entrada | Monomassa: | Sim |
| Paredes Hall de Entrada | Pedra natural: | Sim |
| Tecto Hall de Entrada | Estucado: | Sim |
| Tecto Hall de Entrada | Falso pladur: | Sim |
| Tecto Hall de Entrada | Focos: | Sim |
| Equipamento | Gás canalizado: | Sim |
| Equipamento | Jardins: | Sim |
| Equipamento | Parque infantil: | Sim |
| Equipamento | Piscina exterior: | Sim |
| Equipamento | Sala de Condomínio: | Sim |
| Equipamento | TV Cabo: | Sim |
| Equipamento | Ventilação mecânica: | Sim |
| Equipamento | Video-Porteiro: | Sim |
| Água | Companhia: | Sim |
| Água | Depósito: | Sim |
| Gerais | Estores elétricos: | Sim |
|---|---|---|
| Gerais | Rega Automática: | Sim |
| Painel Solar | Completo: | Sim |
| Gerais | Auto-Estrada: | Sim |
|---|---|---|
| Gerais | Perto de mar: | Sim |
| Gerais | Transportes públicos: | Sim |
| Centralidade | Periferia da cidade: | Sim |
| Proximidade | Bancos: | Sim |
| Proximidade | Centros comerciais: | Sim |
| Proximidade | Clínicas: | Sim |
| Proximidade | Escolas: | Sim |
| Proximidade | Farmácias: | Sim |
| Proximidade | Ginásios: | Sim |
| Proximidade | Hospitais: | Sim |
| Proximidade | Jardins: | Sim |
| Proximidade | Jardins de infância: | Sim |
| Proximidade | Padarias: | Sim |
| Proximidade | Praias: | Sim |
| Proximidade | Serviços públicos: | Sim |
| Proximidade | Supermercados: | Sim |
| Acessos | Alcatrão: | Sim |
Este imóvel não tem áreas definidas.
D STYLE MADEIRA - Real Estate
São Martinho / Funchal / Ilha da Madeirageral (at) dstylemadeira dot com
938289968 (Chamada para a rede fixa nacional)
Funchal, Santa Luzia, Madeira
Preço sob consulta
Ref: DS-072/25
Ref: DS-072/25
Funchal, Santo António, Madeira
Preço sob consulta
Ref: DS-022/25
Ref: DS-022/25
Funchal, São Martinho, Madeira
570.000€
Ref: DS-061/25
Ref: DS-061/25